Book a Call

Edit Template

Escalator

What is an Escalator?

An escalator is a mechanical transportation device designed to move people safely and smoothly between different levels of a building. It consists of a continuous loop of metal steps connected and moving on inclined tracks, allowing upward or downward travel.

Main Components of an Escalator:

1.⁠ ⁠Steps:
Move along tracks while maintaining a horizontal position for passenger comfort and safety.


2.⁠ ⁠Handrail:
A rubber belt that moves in sync with the steps, providing stability for users.


3.⁠ ⁠Truss:
The structural steel frame that connects the upper and lower landings and supports all internal components.


4.⁠ ⁠Drive Unit:
Powers the entire system, typically including a gearbox, motor, and brake for safety.


5.⁠ ⁠Comb Plates:
Located at the entrance and exit, preventing small objects from falling into the mechanism.

Safety Features:

  1. Emergency stop buttons
  2. Anti-slip sensors
  3. Auto-locking mechanisms when stopped
  4. Fire-resistant and anti-slip finishes

Different Type of Escalators

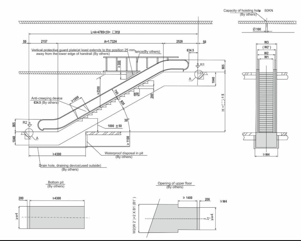
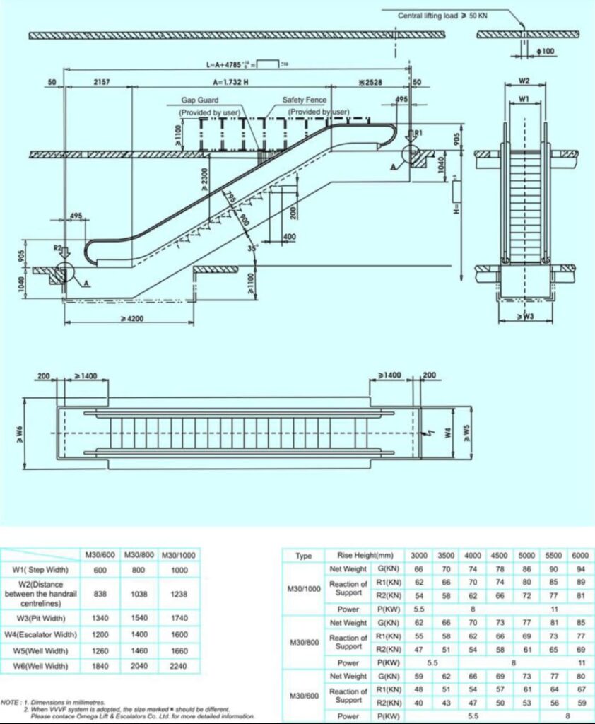
Sketch of our Escalators

About Us

Skyrise Elevators is a professional elevator & escalator installation and maintenance company based in Abuja, Nigeria. Founded by a team of experienced technicians, we specialize in mechanical and electrical elevator works with deep expertise in Arkel, Monarch, and Fuji systems.

Our contacts

Let's Connect

© 2025 Created by Edusmartsoft Solutions